Ubicada dentro del plan maestro Villa Esencia, en el corazón del Valle de Guadalupe, esta residencia explora el diálogo entre geometría contemporánea, materialidad honesta y respeto por el paisaje vinícola que la rodea. El proyecto se concibe como una pieza escultórica integrada al territorio, cuya volumetría inclinada responde tanto a condicionantes topográficas como a una intención expresiva deliberada.
Valle de Guadalupe, Ensenada, BC, México
Proyecto
2018
360 m²
Architecture & Transformations
Residencial

La vivienda se organiza a partir de un volumen angular que emerge del terreno con un gesto dinámico, definido por planos inclinados que rompen la ortogonalidad tradicional. Esta decisión arquitectónica genera una lectura clara de los espacios habitables desde el exterior, al tiempo que establece una narrativa visual coherente con el espíritu innovador del enclave.
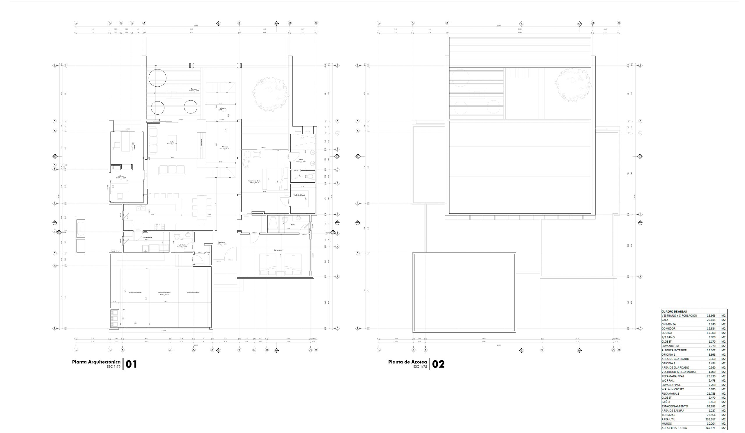
El programa se desarrolla en un solo nivel, privilegiando la horizontalidad y la fluidez interior. La planta se abre mediante grandes ventanales hacia el paisaje norteño, capturando luz natural y permitiendo vistas continuas al viñedo y a los elementos naturales del sitio. La forma también optimiza el asoleamiento pasivo y la ventilación cruzada, mejorando el comportamiento térmico sin recurrir a sistemas mecánicos intrusivos.
Constructivamente, el proyecto se resuelve mediante una cimentación de concreto armado que garantiza estabilidad sobre el terreno semirocoso del valle. Los muros están conformados por bloques de concreto celular, elegidos por su ligereza, eficiencia térmica y sustentabilidad. Estos se revisten con una piel texturizada que acentúa las líneas horizontales del volumen, permitiendo que el edificio dialogue con el carácter estratificado del suelo vinícola.
La cubierta, realizada en madera estructural laminada, se manifiesta al exterior como un plano inclinado revestido en duela de madera tratada térmicamente. Este elemento, además de aportar calidez al conjunto, refuerza el carácter tectónico del diseño y remite a una arquitectura de campo reinterpretada con un lenguaje contemporáneo.


Los interiores continúan el lenguaje sobrio y natural del exterior, privilegiando la continuidad espacial y el uso de materiales honestos. Muros blancos, pisos de madera clara y mobiliario de líneas limpias conforman una atmósfera neutra que permite que la arquitectura y el entorno se manifiesten sin distracciones. Elementos como una chimenea suspendida o una mesa de centro en madera maciza recuperada introducen acentos escultóricos que refuerzan la conexión con lo artesanal y lo local.
Este proyecto forma parte de Villa Esencia, un plan maestro de usos mixtos que promueve una arquitectura contextual, sostenible y enfocada en la experiencia sensorial. En ese marco, esta villa se posiciona como un manifiesto de lo posible: una vivienda que, sin recurrir a ornamentos ni excesos, logra ser innovadora, eficiente y profundamente enraizada en su lugar.
A través de este gesto arquitectónico claro y contenido, el despacho reafirma su compromiso con una arquitectura que escucha, interpreta y transforma el entorno con respeto y audacia
